Photo 1
1 / 9
BuyApartment

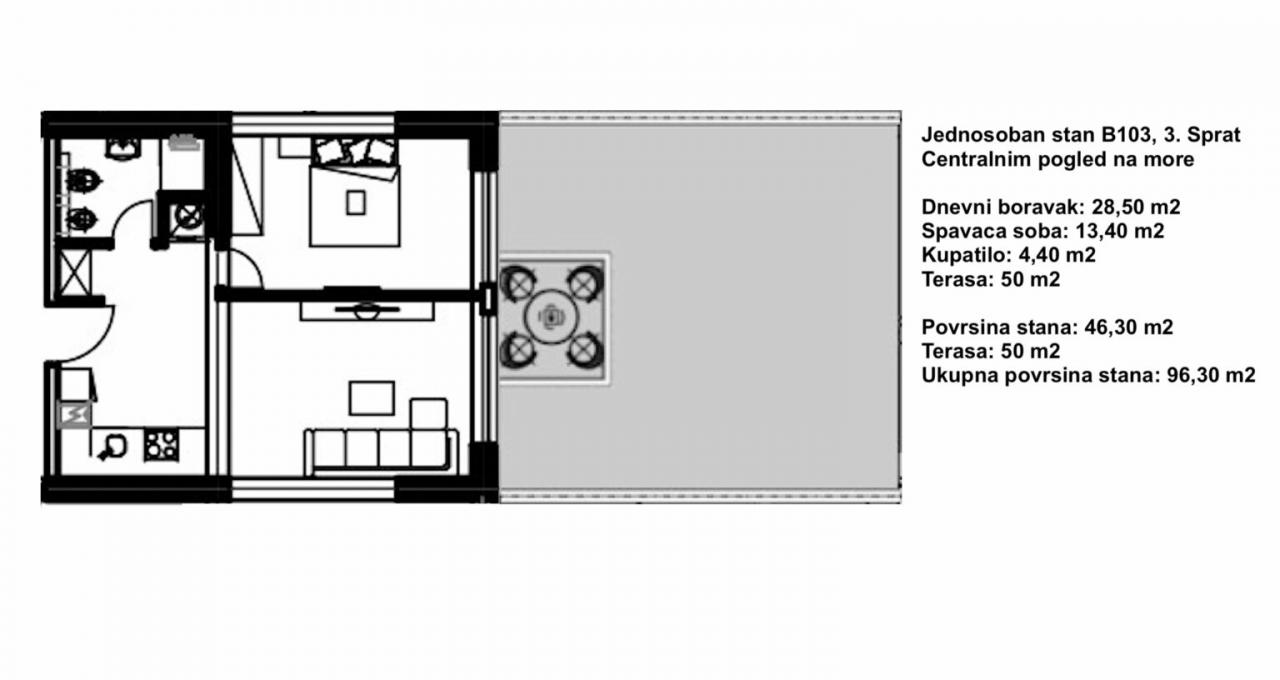
Apartment in Budva, 96 m²

Budva, Budva, Montenegro
430,000
21 views
3/15/2026

Description

Apartment address: 1.Living room : 28.50 m2 2.Laundry room : 13.40 m2 3.Bathroom : 4.40 m2 Living area of the apartment: 43.30 m2 Shared terrace: 50 m2 Total area of the apartment: 96.30 m2 Rooms: Suspended ceilings Lighting Wallpaper Floor heating Oak parquet of the 1st class Bathroom: Plumbing: Villeroy&Boch (shower cabin or bathtub) Marble Travertini granite Mosaic tiles made of Venetian glass by Valentino Underfloor heating Front: Travertini beige granite Three-chamber double-glazed windows.

Parameters

96 м²
Area (m²)
1
Bedrooms
1
Bathrooms
3/10
Floor

📍 Location on Map

Budva, Budva, Montenegro

Loading map...

Back

Cherry Estate

Real Estate Agency

🔗 Open Source