Photo 1
1 / 7
BuyApartment

PRODAJE SE – Jednosoban stan u izgradnji, Ljubović (sa strane Zabjela), Podgoric

Podgorica, Montenegro
108,000
17 views
3/30/2026

Description

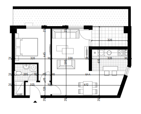
Na prodaju je jednosoban stan u izgradnji, ukupne površine 54 m², sa dodatnom terasom od 15 m², smješten na petom spratu moderne stambene zgrade u naselju Ljubović, sa zabjelske strane. Zgrada nije posljednji sprat i posjeduje lift. Radovi su uveliko u toku, a završetak izgradnje planiran je za septembar 2027. godine. Stan se nalazi u novoj i savremeno projektovanoj zgradi, sa obezbijeđenim parkingom ispred objekta za stanare. Kupovina putem stambenog kredita nije moguća. Raspored stana obuhvata: • Dnevni boravak sa trpezarijom i kuhinjom u jednoj open space cjelini • Spavaću sobu • Kupatilo • Terasu površine 15 m² Dodatne informacije: • Novogradnja – pouzdan investitor • Odlična spratnost i funkcionalan raspored • Gratis terasa koja značajno povećava upotrebnu vrijednost stana • Idealno rješenje za život ili investiciju Fleksibilni uslovi plaćanja omogućavaju kupovinu na rate, uz jasno definisanu dinamiku isplate tokom izgradnje.

Parameters

69 м²
Area (m²)
1
Bedrooms
1
Bathrooms
2027
Year Built

Features

New Construction

📍 Location on Map

Podgorica, Montenegro

Loading map...

Back

Estate Agent

Individual

🔗 Open Source