Top
Estate
Buy
Rent
Sell
From Developer
🇬🇧
en
Add Listing
Login
Top Estate
/
Location
/
Apartment For Sale, Šušanj
1 / 6
Buy
Apartment
Apartment For Sale, Šušanj
Bar, Montenegro
€330,000
49 views
2/10/2026
Description
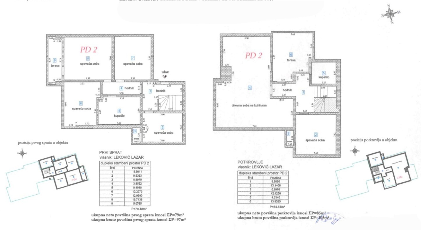
Na mirnoj lokaciji u Susnju (Bar) na 100m od mora, prodaje se stan od 164m2. Stan je na dva nivoa (dupleks). Kompletno renoviran 2009. godine. Na prvom spratu se nalaze 4 sobe, 2 ...
Parameters
164 м²
Area (m²)
4
Rooms
5
Bedrooms
2
Bathrooms
2006
Year Built
Features
Air Conditioning
📍 Location on Map
Bar, Montenegro
Loading map...
Back
Estate Agent
Individual
+382 ••• •••
show
🔗 Open Source
Report Listing
Recommended Listings
1/11
Buy
Real Estate Agency
€330,000
Apartment in Bar, 80 m²
Bar
80 м²
2
1
5/8 эт.
Cherry Estate
1/16
Buy
Real Estate Agency
€330,000
Apartment in Bar, 80 m²
Bar
80 м²
2
1
7/8 эт.
Cherry Estate
1/19
Buy
Real Estate Agency
€340,000
Apartment in Bar, 151 m²
Bar
151 м²
3
2
6/7 эт.
Cherry Estate
1/20
Buy
Real Estate Agency
€320,000
Apartment in Bar, 100 m²
Bar
100 м²
2
2
5/7 эт.
Cherry Estate
1/10
Buy
Individual
€340,000
Beautiful apartment in Bar, Bar
Bar
151 м²
3
2
1
Estate Agent
Buy
Individual
€320,000
Luksuzni apartman s pogledom na more – 144 m² udobnosti i vrhunskih sadržaja
Bar
144 м²
Estate Agent
1/10
Buy
Individual
€320,000
Prodajem Stan-Apartman, Bar Centar
Bar Centar
140 м²
3
2
1
Estate Agent
1/17
Buy
Real Estate Agency
€315,000
Apartment in Bar, 100 m²
Bar
100 м²
2
2
6/7 эт.
Cherry Estate
Buy
Individual
€312,500
Prodajem Stan-Apartman, Bar Centar
Bar Centar
125 м²
3
Estate Agent
1/14
Buy
Real Estate Agency
€310,000
Apartment in Bar, 176 m²
Bar
176 м²
3
2
6/7 эт.
Cherry Estate
Buy
Individual
€350,000
Lux furnished apartment 106m2 in a complex on the coast
Dobra Voda
106 м²
Estate Agent
1/20
Buy
Real Estate Agency
€360,000
Apartment in Bar, 124 m²
Bar
124 м²
4
2
5/6 эт.
Cherry Estate